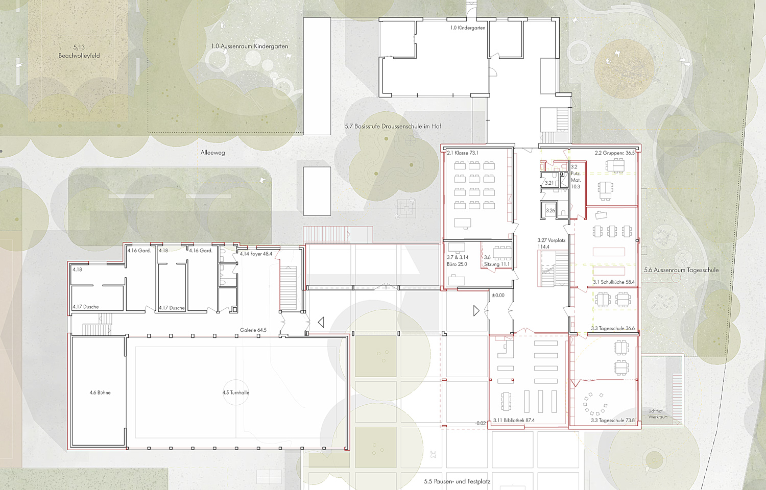
Projektwettbewerb ⋅ Erneuerung und Erweiterung Schulanlage Zelg ⋅ Kirchdorf ⋅ 1. Preis ⋅ 2023 Auftraggeber: Gemeinde Kirchdorf > Jurybericht < > nächstes Projekt