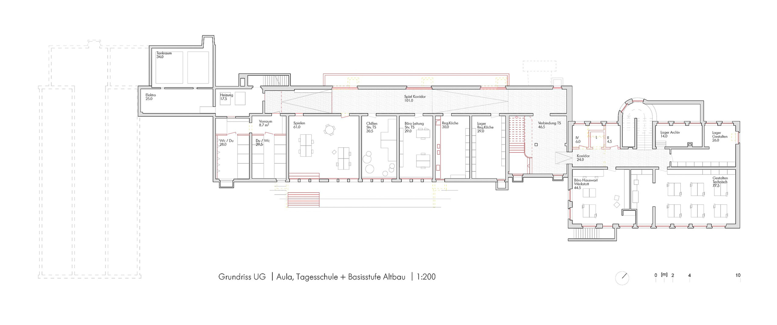
Projektwettbewerb Sanierung und Erweiterung Primarschule Lerchenfeld · Thun · 3. Preis · 2023 Auftraggeber: Stadt Thun, Amt für Stadtliegenschaften (Gemeinde/Stadt) > Jurybericht < > nächstes Projekt