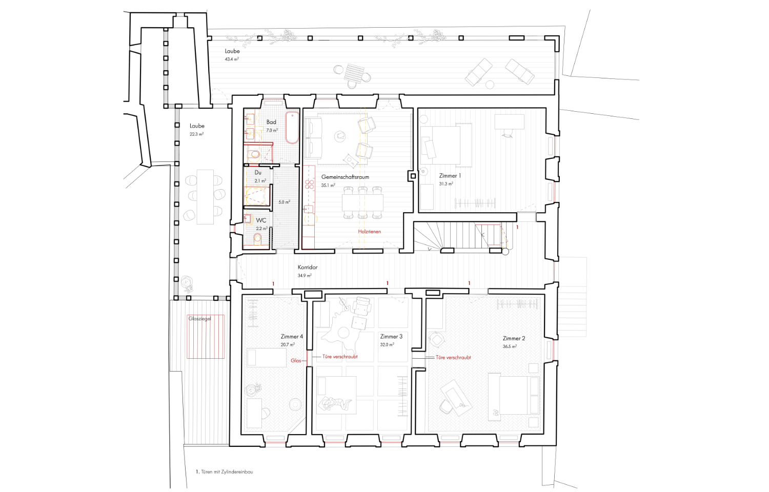
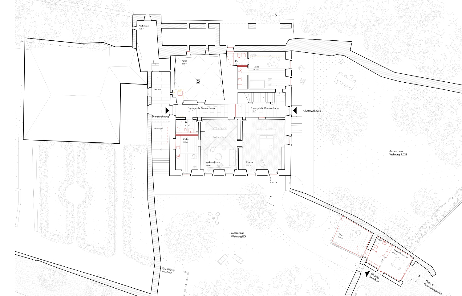
Projektwettbewerb ⋅ Pfarrhaus ⋅ Thun ⋅ 1. Preis ⋅ 2020 Auftraggeber: Reformierte Gesamtkirchgemeinde · Thun < > nächstes Projekt